СЕТ: Инсталляция IDROSPANIA TABARCA + унитаз Azario Teramo смыв "Торнадо", с быстросъемным сиденьем
СЕТ: Инсталляция IDROSPANIA TABARCA + унитаз Azario Teramo — это готовое решение для современного санузла, объединяющее испанский дизайн и передовые технологии. Комплект отличается продуманной конструкцией и высокой функциональностью, что делает монтаж и эксплуатацию максимально простыми.
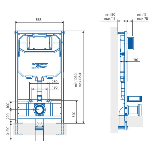
Инсталляция IDROSPANIA TABARCA производится в Испании и обладает рядом важных особенностей. Ее изолированный корпус надежно защищает от образования конденсата и снижает уровень шума при работе. Встроенный бачок оснащен механизмом двойного смыва с экономичным расходом воды — 3 или 6 литров. Система работает тихо и эффективно даже при низком давлении в сети от 0,5 бар. Конструкция предлагает гибкость при монтаже: регулируемый настенный анкер (9-12 см), держатель для унитаза (18-23 см) и оцинкованные подставки для ножек с регулировкой от 0 до 24 см.
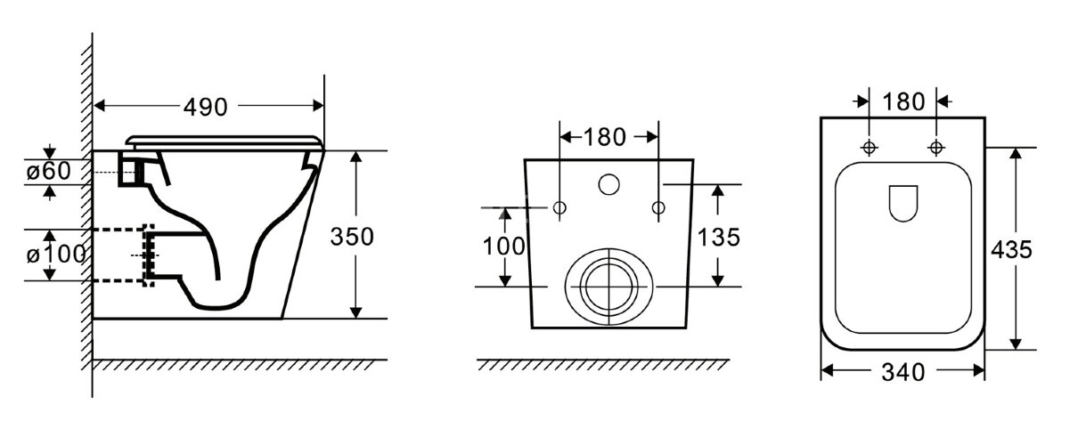
Унитаз Azario Teramo подвесного типа выполнен из санфаянса и комплектуется сиденьем из дюропласта. Система смыва «Торнадо» обеспечивает мощную и равномерную очистку чаши по всей окружности. Сиденье оснащено быстросъемным механизмом для легкого ухода и системой «Микролифт», которая обеспечивает плавное и бесшумное закрывание крышки.
Ключевые преимущества комплекта:
- Гарантия 10 лет на инсталляцию и поверхность унитаза.
- Экономичный двойной смыв 3/6 литров.
- Тихое заполнение бачка и изолированный корпус.
- Регулируемые элементы конструкции для простого монтажа.
- Плавно закрывающаяся крышка с системой «Микролифт» (гарантия 1 год).
- Унитаз с мощной системой смыва «Торнадо» и быстросъемным сиденьем (гарантия 2 года).
Комплект поставляется в белом цвете. Для завершения установки клавишу смыва необходимо приобрести отдельно. Мы осуществляем доставку во все регионы и предлагаем услуги профессионального монтажа.

































































































































































































































































































































































